對摺防夾鉸鏈
| 型號 | |
|---|---|
| L37001 | 00800 |
摺疊上掀門五金(德國進口)
| 型號 | 高度H(mm) | 載重(kg) | 型式 | |
|---|---|---|---|---|
| L35650 | 14800 | 650-730 | 9.5-18.7 | F5 |
| L35710 | 14800 | 710-790 | 8.7-17.2 | G5 |
| L35770 | 14800 | 770-840 | 8.0-15.5 | H5 |
| L35840 | 14800 | 840-910 | 7.3-14.6 | I5 |
| * 附件:對摺防夾鉸鏈x2只 |
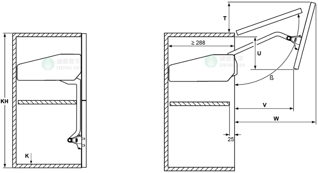
安裝說明

| B[º] | T* | U* | V* | W* | |
|---|---|---|---|---|---|
| 654-730 | ~107-94 | 124-38 | 147-224 | 238-215 | 411-470 |
| 710-790 | ~108-95 | 136-46 | 161-233 | 250-219 | 439-500 |
| 770-840 | ~108-95 | 146-43 | 179-223 | 267-200 | 466-527 |
| 840-910 | ~108-98 | 154-70 | 195-248 | 272-231 | 502-559 |








